02
/
PIAZZA ISTRIA
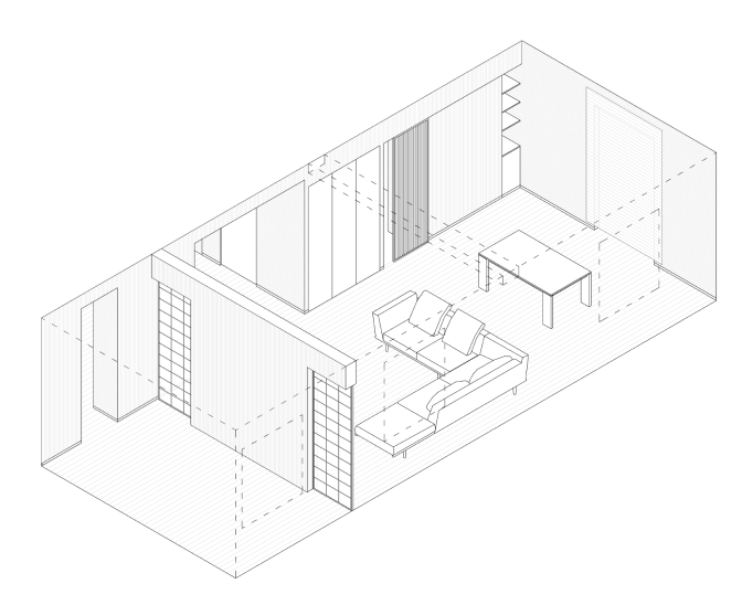
L’attico di Piazza Istria ha posto le basi un’estetica classica e lineare, adeguando il progetto alle nuove tecnologie. L’ambiente principale da cui si snodano tutte le varie funzioni è la zona giorno caratterizzata da ampie vetrate e arredi di design moderno
Lo studio affaccia tramite due pannellature scorrevoli a scomparsa sullo sfondo del prospetto principale della zona giorno
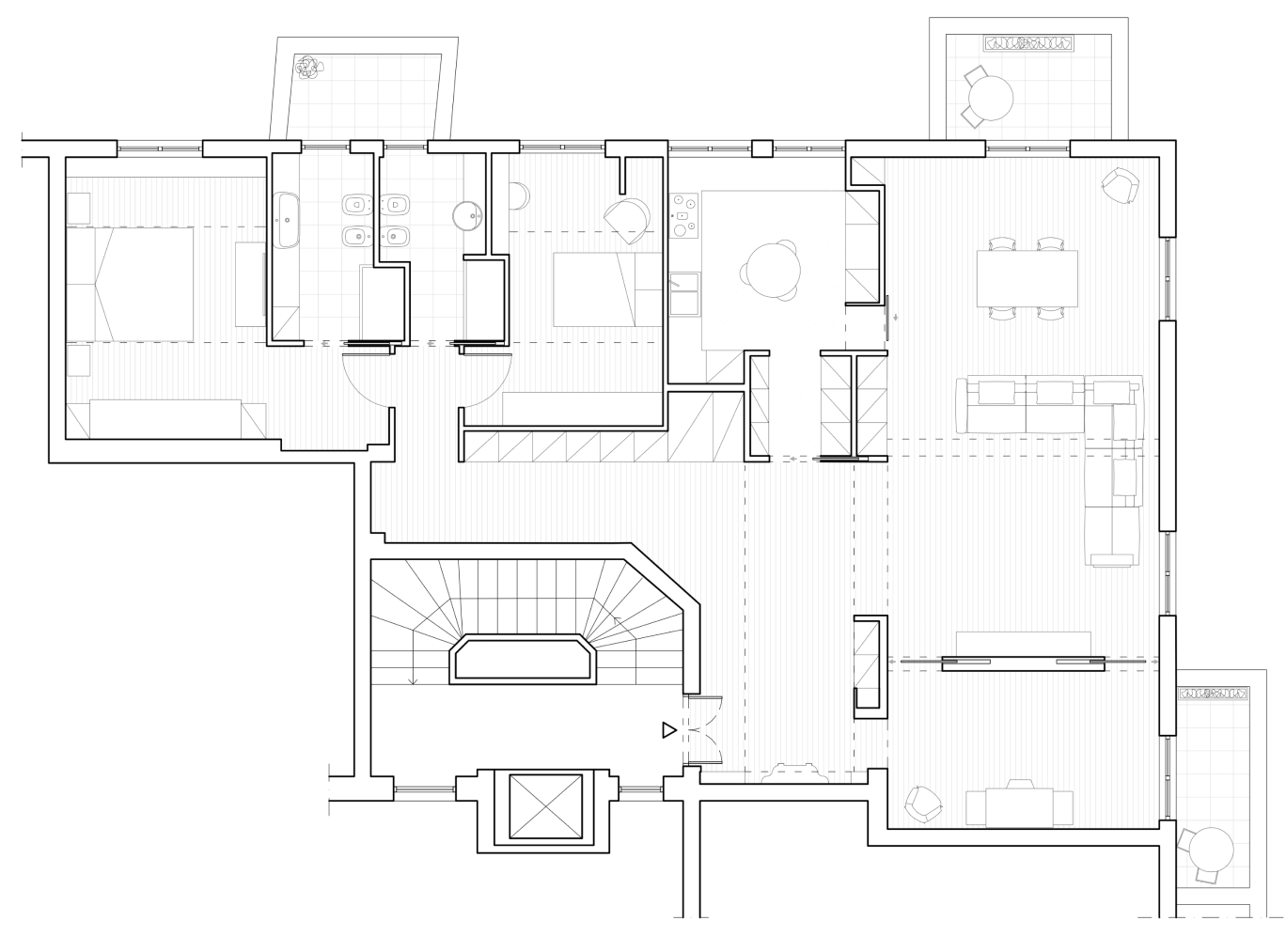
Il corridoio, snodo dell’appartamento tra la zona giorno e la zona notte, sviluppa su uno dei lati dell’armadiature a muro in falegnameria che scompaiono nel prospetto e dall’altro lato è caratterizzato da opere d’arte, già di proprietà della committenza e da mattoni circolari di vetrocemento
La cucina, fulcro dell’attività domestica, con doppio ingresso sia dal salone sia dal corridoio principale è caratterizzata da una configurazione scatolare chiara arricchita dagli arredi a centro stanza colorati
Progetto: Loy Architetti
Collaboratori: Arch. Cecilia Leone
Fotografo: Andrea Veneri
Made on
Tilda