03
/
VIA MONTENEVOSO
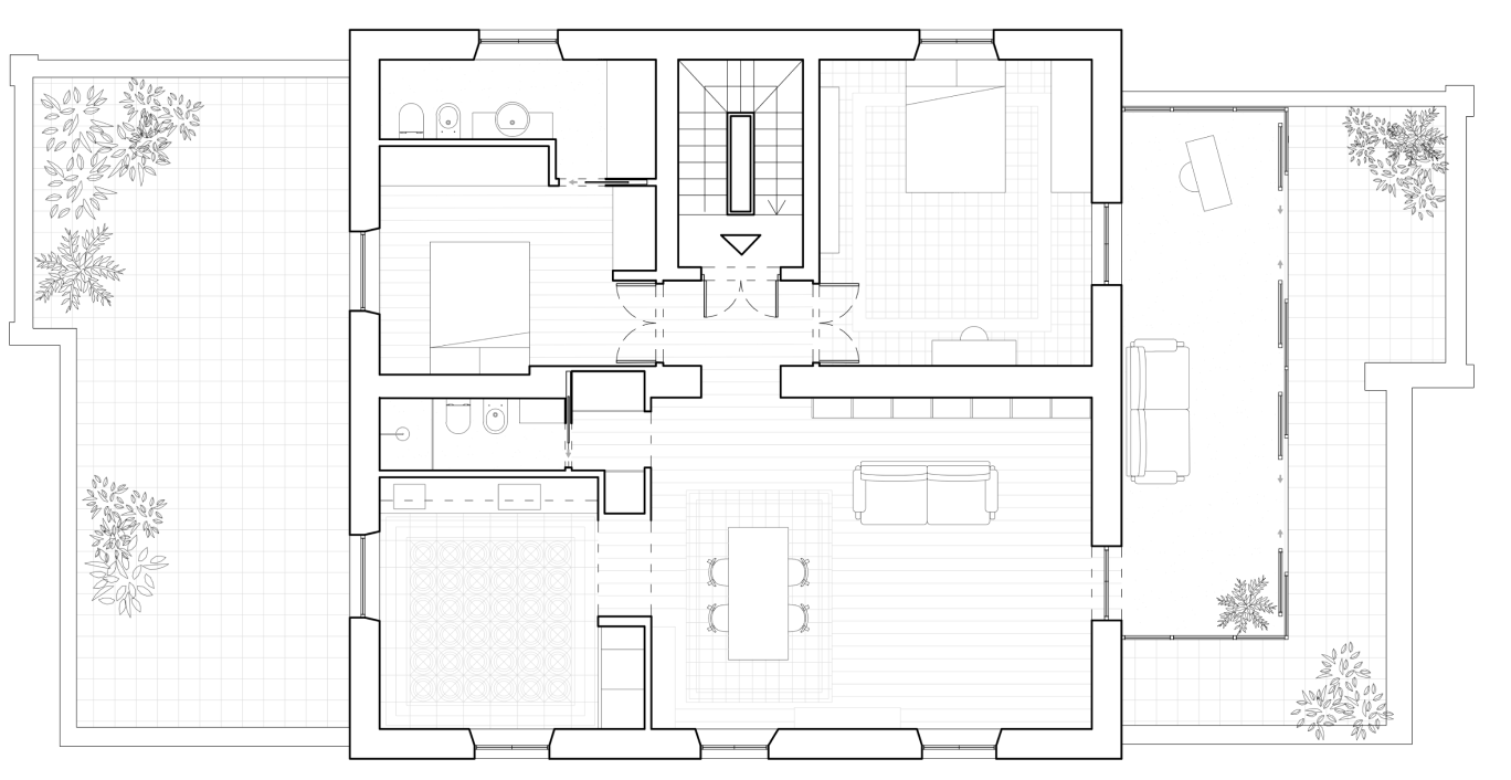
L’attico, unico all’ultimo piano di un villino del 1927, rimaneggiato negli anni, l’unica camera con pavimento originale decorato era un piccolo salotto con camino
Il progetto ha stravolto la distribuzione originaria, creando una zona giorno esposta a sud che collegasse le due terrazze nel soggiorno, con le finestre laterali affacciate sul quartiere e i punti di fuga longitudinali delle due terrazze sul verde del parco
Durante le demolizioni altre aree con pavimenti di pregio sono riemersi e sono stati restaurati e mantenuti come incursioni cromatiche uno di questi è stato adattato per accogliere il tavolo da pranzo, un fratino in rovere e ciliegio massello su disegno
Il mobile della televisione in marmo e legno laccato, sempre su disegno, è nato come un omaggio a Ettore Sottsass
Lo spazio si muove con un doppio ritmo, interno e esterno la cucina ha preso il posto del vecchio salotto, per conservare il pavimento origianale su disegno
Progetto: Loy Architetti
Collaboratori: Arch. Alessia Piaggio
Fotografo: Mattia Panunzio
Made on
Tilda