05
/
VIA FLAMINIA
L’appartamento in Via dei Giordani, in una palazzina degli anni 40 è stato riconvertito per le esigenze della committente, per la quale lo studio ha curato anche la scelta dell’immobile da acquistare, selezionato per le potenzialità di luce e visuali
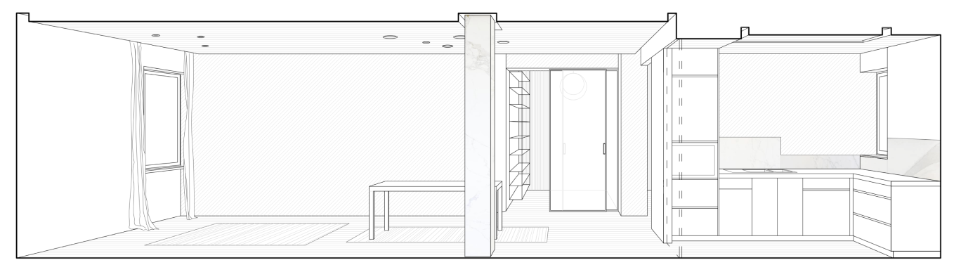
Il minimalismo, in questo caso non inteso come una rinuncia, si ottiene con l’uso di materiali altamente espressivi, forma, tattilità, differente trasparenza e lucentezza mirano alla costruzione di una scenografia sospesa
L’ingresso con la lampada di Toyo Ito, è schermato da due porte in vetro traslucido, la sala è costellata da faretti circolari in gesso incassati che simulano uno spessore del cartongesso, messo in discussione dall’effetto galleggiante dei controsoffitti. Questi sono allontanati dalle pareti da una sottile asola che si allarga per accogliere le tende in lino bianco e i tagli di luce
Le soluzioni d’angolo sono un tema ricorrente dello studio di elaborazione, sia nel caso del rapporto tra le due porte scorrevoli di camera e cucina con i pannelli dell’ingresso, sia per le due porte a bilico fuori misura della zona notte
Nell’appartamento si sono sperimentate le proprietà espressive del marmo, statuario e arabescato a vena aperta, materiale di elezione per l’atmosfera rarefatta del progetto
Progetto: Loy Architetti
Collaboratori: Arch. Isabella Porreca
Fotografo: Mattia Panunzio
Made on
Tilda