01
/
VIA SALARIA
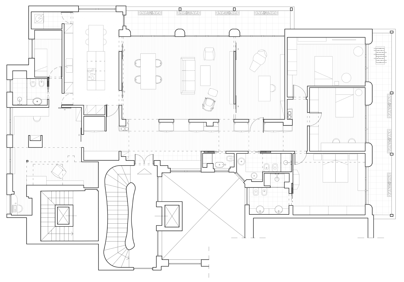
Nella palazzina razionalista con influenze decò l’appartamento presentava già una qualità progettuale e distributiva che rispondeva in parte alle esigenze della committenza per cui si è ricercata una valorizzazione di volumi e ambienti mediante la messa in tensione delle altezze e la sottolineatura dei passaggi con l’utilizzo di boiserie in rame ossidato e lame di luce
I tre ambienti del salone centrale, dello studio e della cucina vengono separati mediante l’utilizzo di grandi pannelli scorrevoli vetrati a contrasto con le pareti rivestite in grassello di calce, ma al tempo stesso una volta aperte le porte gli ambienti si uniscono in uno spazio fluido e ricercato
La grande cucina è progettata con un rigore formale messo in discussione da un’astrazione pop sottolineate da scelte cromatiche e varietà di materiali pregiati, rivestimenti a contrasto e dotazioni integrate. Il marmo di carrara utilizzato per il rivestimento del piano dell’isola con il bordo riportato in cui si evincono le venature continue esibisce uno spessore notevole andando bilanciare i volumi e i pesi in contrapposizione anche al piano in rovere massello su un livello differente
In questo contenitore ben temperato abbiamo poi disposto questi oggetti del design italiano caratterizzati da forme sinuose e morbide e con accostamenti di colore forti e a contrasto tra loro
Progetto: Loy Architetti
Collaboratori: Arch. Stefano Campagna
Fotografo: Andrea Veneri
Made on
Tilda